今回ご紹介するのはこちらの物件
福岡市博多区にあります、築37年のリノベーション物件です。


ABOUT
価格 2,390万円
面積 59.77㎡
所在地 福岡県福岡市博多区那珂5丁目
交通 JR鹿児島本線:竹下駅 徒歩20分
完成 1989年2月
構造 RC造
規模 地上8階建て (総戸数:48戸)
階数 6階部分
駐車場 有 ※空き状況は管理会社へ要確認
管理費 4,510円/月
修繕積立金 8,550円/月
町内会費 500円/月(年2回 3,000円ずつ)
役員協力金 500円/月
学校区 弥生小学校/那珂中学校
管理形態 全部委託
管理会社 総合システム管理(株)
管理方式 巡回清掃のみ
土地権利 所有権
引渡し 即 時
情報更新日 2026.3.19
こちらの物件に関するお問い合わせは、お電話(092-791-4080)にてご連絡の上
「#420.福岡市博多区のリノベーション物件」とお伝えください。
DATA
- 価 格
- 2,390万円
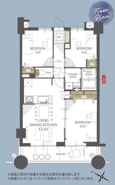
- 間取り
- 3LDK
- 住 所
- 福岡県福岡市博多区那珂5丁目
- アクセス
- JR鹿児島本線:竹下駅 徒歩20分
#153.福岡市中央区のリノベーション物件(5/22更新)
<成約済>#075.福岡市中央区のリノベーション物件(2/9更新)
<成約済>#176.糸島市のリノベーション物件 