今回ご紹介するのはこちらの物件
福岡市中央区にあります、築40年のリノベーション物件です。


ABOUT
価格 2,790万円
面積 54.13㎡
所在地 福岡県福岡市中央区草香江1丁目
交通 福岡市地下鉄七隈線:六本松駅 徒歩6分
完成 1985年3月
構造 SRC造
規模 地上9階建て (総戸数:65戸)
階数 1階部分
駐車場 有 ※空き状況は管理会社へ要確認
管理費 5,150円
修繕積立金 9,170円
専用庭使用料 400円
町費 250円 ※初回のみ入町費300円
学校区 草ヶ江小学校/城西中学校
管理形態 全部委託
管理会社 (株)ジェント
管理方式 日勤管理
土地権利 所有権
引渡し 即 時
情報更新日 2025.10.10
こちらの物件に関するお問い合わせは、お電話(092-791-4080)にてご連絡の上
「#353.福岡市中央区のリノベーション物件」とお伝えください。
DATA
- 価 格
- 2,790万円
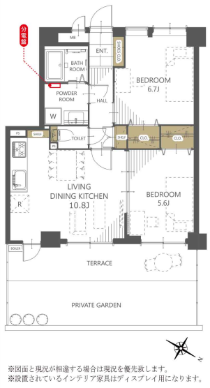
- 間取り
- 2LDK
- 住 所
- 福岡県福岡市中央区草香江1丁目
- アクセス
- 福岡市地下鉄七隈線:六本松駅 徒歩6分
<成約済>#266.福岡市中央区のリノベーション物件
<成約済> #029.福岡市南区のリノベーション物件
<成約済>#063.福岡市中央区のリノベーション物件(9/15更新) 